Decorative Design Levers

How many times have you found the perfect lever style you wanted to use throughout your project only to find it isn’t offered on the different lock types the job requires?

Decorative Design Levers

Hager is excited to announce we have just released five new decorative lever styles available on our 2300 tubular lock and 3800 mortise lock series. This will be helpful on multi-family projects where a stronger lock is needed to secure the front door but interior doors don’t need the same security, which can save money.

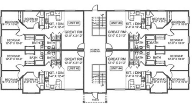
On the project above, which is part of a multi-level apartment complex, we would suggest specifying mortise locks on the front entry doors into the units. An inadequately secured front door is the most common point of entry for burglars. Mortise locks provide sturdier protection due to the longer and thicker mortise body that slides into a pocket on the edge of a door. On the interior doors which include the bedroom, bathroom and closet doors, a tubular lock is suitable.  Of course the deco levers are available on all functions of the 3800 mortise lock not just the entry.

 

Having the ability to have both styles of locks, mortise and tubular, with the same lever design throughout the unit is now called “suite”. This can and should be confused with sweet because the new levers really are. These levers are available in US3, US4, US10B US15, US26 & US26D finishes. Split finishes are also available.

 

By clicking 'Accept All' you consent that we may collect information about you for various purposes, including: Functionality, Statistics and Marketing